2745 Louis Circle Crestview, FL 32536

UPDATED:
Key Details
Property Type Single Family Home
Sub Type Traditional
Listing Status Active
Purchase Type For Sale
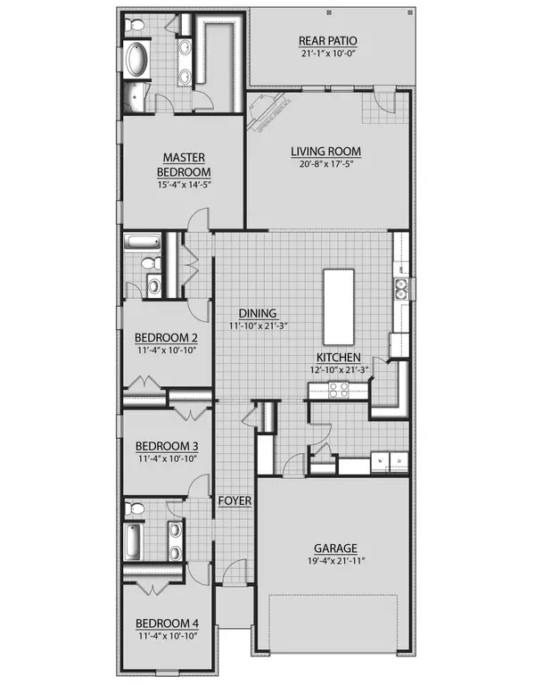
Square Footage 2,451 sqft
Price per Sqft $163
Subdivision Young Oaks
MLS Listing ID 985146
Bedrooms 4
Full Baths 3
Construction Status Under Construction
HOA Y/N Yes
Year Built 2025
Lot Size 10,890 Sqft
Acres 0.25
Property Sub-Type Traditional
Property Description
Location
State FL
County Okaloosa
Area 25 - Crestview Area
Zoning Resid Single Family
Rooms
Kitchen First
Interior
Interior Features Breakfast Bar, Ceiling Crwn Molding, Floor Vinyl, Kitchen Island, Lighting Recessed, Pantry, Pull Down Stairs, Shelving, Washer/Dryer Hookup, Window Treatmnt Some
Appliance Auto Garage Door Opn, Dishwasher, Disposal, Microwave, Smoke Detector, Stove/Oven Electric, Warranty Provided
Exterior
Exterior Feature Patio Covered
Parking Features Garage Attached
Pool None
Utilities Available Electric, Public Water, Septic Tank, Underground
Private Pool No
Building
Lot Description Curb & Gutter, Interior, Level, Sidewalk
Story 1.0
Structure Type Brick,Siding CmntFbrHrdBrd
Construction Status Under Construction
Schools
Elementary Schools Bob Sikes
Others
HOA Fee Include Management
Energy Description AC - Central Elect,Ceiling Fans,Double Pane Windows,Heat Cntrl Electric,See Remarks,Water Heater - Elect
Financing Conventional,FHA,VA

GET MORE INFORMATION




